Ref # : GE3827
For Sale € 425,000.00
House of Character
Nadur, GOZOOverview
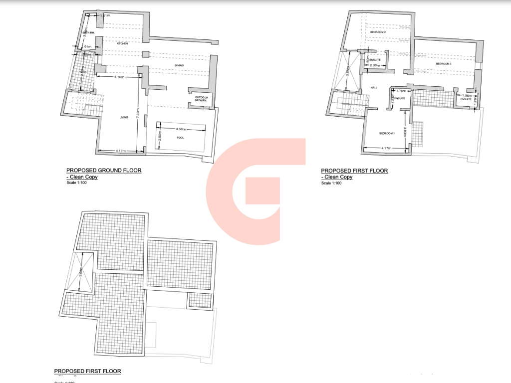
A lovely traditional House of Character, being sold in shell form, featuring a beautiful and practical layout. The property opens into a welcoming hallway leading to a bright and spacious open-plan living, dining, and kitchen area, all overlooking the pool and deck area — perfect for outdoor relaxation and entertaining.
Accommodation includes three double bedrooms, each with its own en-suite, a main bathroom, and balconies/terraces offering delightful views and natural light throughout.
This property also enjoys full airspace and is being sold freehold.
A wonderful opportunity to own a traditional Gozitan home in the heart of Nadur.
Features
Base Information
General Amenities
Exterior Amenities
Giovanni Real Estate
One of the successful real estate agency in the Maltese Islands offering property for sale and turnkey solutions in Malta and Gozo. A vast range of,Apartments, Penthouses Maisonettes, Terraced Houses, Traditional Farmhouses, Houses of character ,Bungalows, Villas, Commercial outlets, property investments and properties for sale are available in Malta and Gozo.
Check out our website, the best place to start your real estate search. You can also contact our real estate agent for a customized selection of the property types you are interested in, including professional advice and opinion.

