Ref # : GE3810
For Sale € 228,000.00
Penthouse
Victoria, GOZOOverview
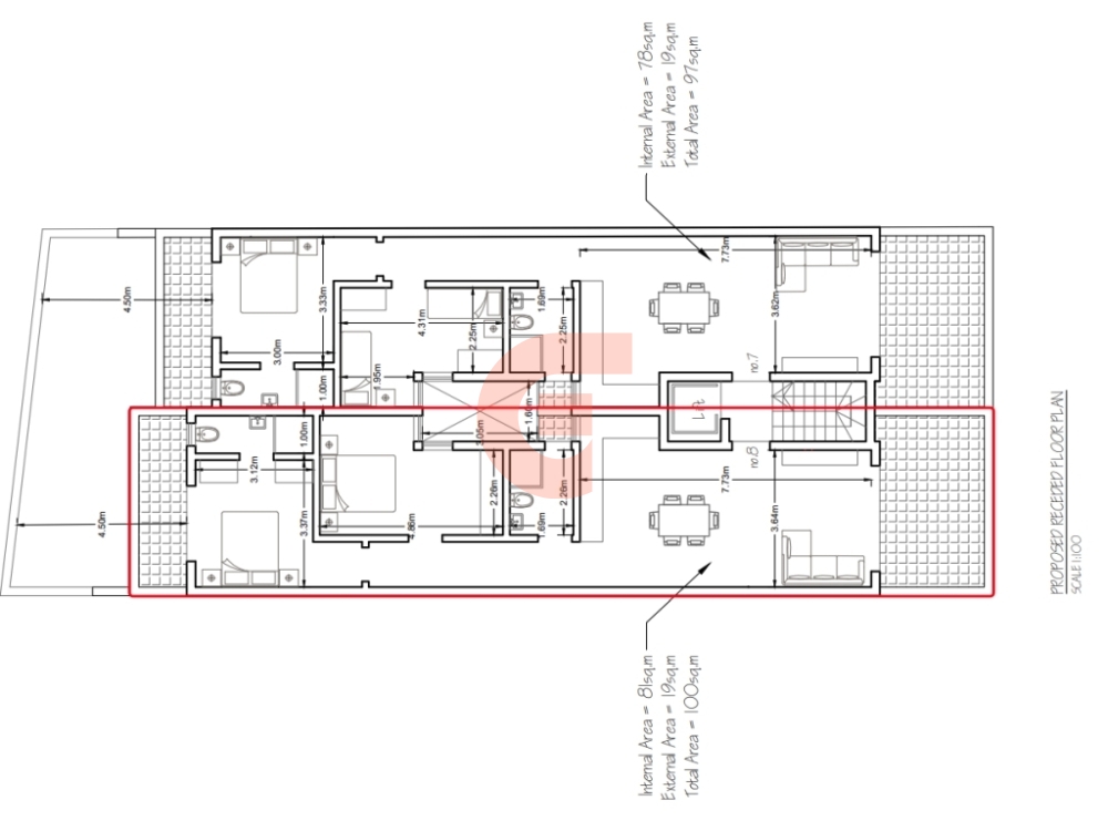
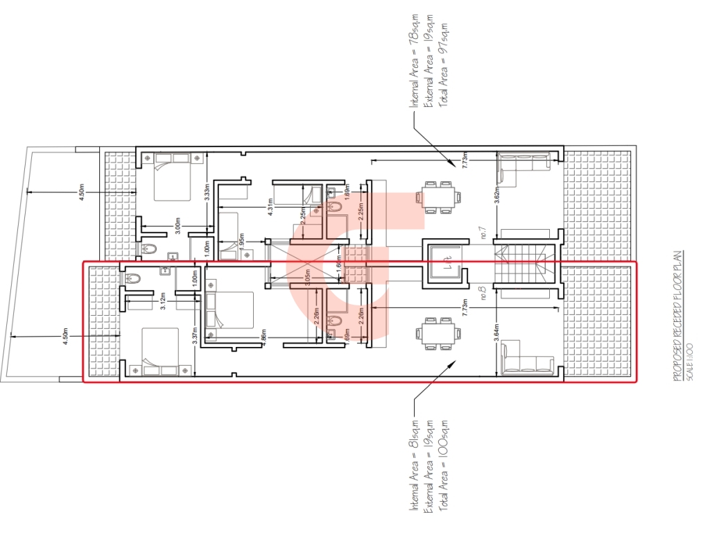
Discover a beautifully designed 2-bedroom penthouse in the capital city, offering a perfect blend of modern living, comfort, and convenience. Situated in a peaceful yet central location, this property provides easy access to all essential amenities — including shops, cafés, restaurants, and daily services — all just a short walk away.
The penthouse features a spacious open-plan layout with natural light flowing throughout, creating a bright and welcoming atmosphere. Enjoy the benefits of both a front terrace, ideal for outdoor dining or relaxation, and a back balcony, providing additional space and ventilation.
-
2 Bedrooms
-
Front terrace and back balcony
-
Modern layout with open-plan living and dining area
-
Bright and airy interiors
Additional €7,000 for lift and common parts.
This property is ideal for anyone seeking a stylish residence in the city, a smart rental investment, or a serene holiday home. Combining modern finishes with an excellent location, this penthouse offers the perfect opportunity to enjoy comfortable urban living in the heart of the capital.
Features
Base Information
Parking Information
Building Information
General Amenities
Exterior Amenities
Interior Amenities
Giovanni Real Estate
One of the successful real estate agency in the Maltese Islands offering property for sale and turnkey solutions in Malta and Gozo. A vast range of,Apartments, Penthouses Maisonettes, Terraced Houses, Traditional Farmhouses, Houses of character ,Bungalows, Villas, Commercial outlets, property investments and properties for sale are available in Malta and Gozo.
Check out our website, the best place to start your real estate search. You can also contact our real estate agent for a customized selection of the property types you are interested in, including professional advice and opinion.

